綠茶中餐廳 · 北京昌平店空間設計
綠茶從2008年在杭州開店以來,因為高性價比、環境優美而迅速成為“網紅”。截至目前,綠茶店鋪已經拓展至全國各地,來自杭州的它不拘泥于杭幫菜,也添加了川菜、粵菜等菜品,將江南特色的味道延伸至更多菜系,這個“老網紅”也必須迎來屬于自己的新形象,本案是“桃花里”系列的首家店,整體設計框架繼續延續南宋古鎮的風格,讓滿滿的粉色桃花,喚起你的少女心!
綠茶中餐廳 · 北京昌平店

根植于杭城的綠茶,始終都 希望能重現古城風光。本案營造了江南水鄉的氛圍,從門頭上開始,就與以往的“龍井船宴”造型做了明顯的區分。

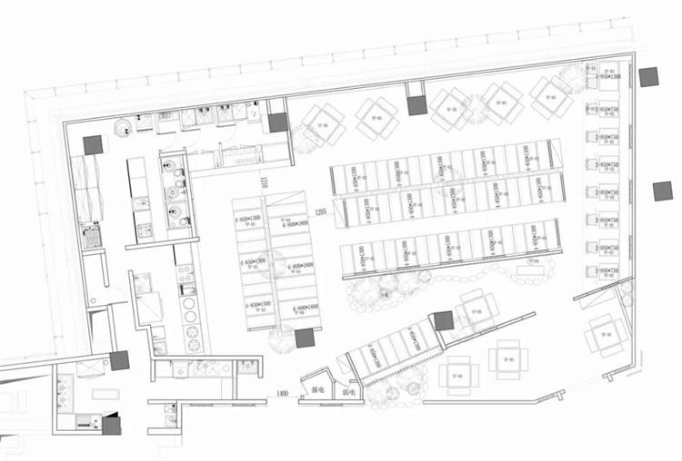
圍墻隔斷和牌坊門頭低矮圍合,高低錯落、層次豐富。粉白的桃花穿過圍墻,讓人忍不住駐足。“院子”入口處仿照古時富裕人家的雙門設置。兩道門中間這短短一段距離既能在較小鋪位面積中形成豐富動線,又能使消費者迅速進入芳菲院落的氛圍之中。

設計元素主要圍繞挑花樹展開,店內的裝飾元素融入了一些傳統的中式家具的設計,再搭配上以松樹為主的水墨畫和毛筆字,使得空間設計,充滿意境。

明檔區小而精致,落地木柜的雕圖案更加扁平化,與之相對應的平面物料也突出“桃花”主題,簡化后的馬頭墻將不同的功能區隔開。



餐區遍布桃樹,主餐區的落地led顯示屏循環播放紛飛的桃林,旁邊的墻體則鑲嵌雕花木窗。動靜結合,市井氣息中另有一番寧靜致遠。


不同區域主景觀不同,與之配套的餐桌椅也不盡相同。這微妙的差別也正是打造豐富真實的場景所必須。

內部空間布局分區明確,保持空間隔而不斷,在空間透視上,增加了視覺延伸感,使空間更富有層次,更具穿透力。

木質的桌椅搭配木質的餐具,暖黃的燈光以及無處不在的貼心細節,給予食客一種溫暖舒適的輕松感。



圍墻隔斷和牌坊門頭低矮圍合,高低錯落、層次豐富。粉白的桃花穿過圍墻,讓人忍不住駐足。

散座區運用石柱廊橋隔斷,在有限的室內空間中,通過環繞型動線將空間利用達到最大化。


不同區域主景觀不同,與之配套的餐桌椅也不盡相同。這微妙的差別也正是打造豐富真實的場景所必須。


以桃花樹為核心設計元素,滿園的桃花盛開,給人一種浪漫悠閑的感覺。


原木色的木窗戶、青色的老磚、古風的燈籠加上的流蘇,有一種很濃的中國風情。



以亭臺樓閣為設計核心元素,打造了一種世外歸隱于世的感覺。

交錯疊加的房梁,香古色的雕飾,純木定制的桌椅,長板凳、四方桌,以及高掛的紙燈籠,有種恍若隔世的年代感。




綠茶餐廳呈現了大隱隱于市的神秘感,呈現了桃花源的浪漫主義,將一方桃花林搬入室內,正如唐寅詩中所寫。餐廳最大的亮點就是根據每個城市的季節以及地域特性,將中國風的設計元素進行重塑,以此來形成了綠茶餐廳在該城市的名片。
