LA GOCCIA餐吧酒吧 · 四川空間設計
快節奏的生活,讓都市人感到麻木,在這個缺乏理想和精神寄托的年代,下班后相約三朋好友,前往浪漫,活躍氛圍佳的餐吧,無疑是鋼筋水泥叢林中的理想綠洲。意大利酒館LA GOCCIA”新店,坐落在四川省自貢市,設計師引入“鹽井”的元素在建筑空間當中,營造出既可用餐,又可會友酣談、酌酒娛樂的社交場所。
LA GOCCIA餐吧 · 四川
▼

餐廳入口的裝飾恰如在繁華都市中的愜意小歇,豐富的仙人掌給予了外擺區輕松愜意的休閑氛圍,成為了年輕人下午茶、休閑打卡之場所。


過在天花板上開井口的方式將天車倒置在井口里,形成夸張視覺感受。

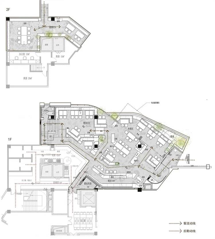
酒館面積約400㎡,室內空間出現地形高差,夾層的設計不僅拓展了營業面積還豐富了客人的體驗感。

夾層是無柱的,采用了拉索結構,像懸空的搖籃懸浮在半空形成輕盈的視覺感受。吧臺運用精致的大理石材質與粗糲的水泥質感形成沖突與反差,營造戲劇感。

4.8M的層高塑造出有雕塑感的空間藝術,將河流沖刷出來的峽谷流線作為空間的曲面形態,雕琢出極具律動感的空間構成形態。

整體設計從餐廳的功能屬性出發,探討光線和空間的內在聯系和變化,營造出別致且詩意的空間。

肌理涂料的運用不僅能還原自然,給客人創造親切的感受還大幅度儉省了投入成本。

仿銅不銹鋼的運用是為了突出精致感,能和墻面肌理形成強烈的視覺反差對比。

青磚的運用增強了厚重的質感,其砌筑方式是對當地文化的尊重,這源自于自貢井鹽作坊的傳統建筑方式。



桌椅裝飾因光而布置,設計都置身于建筑窗戶旁,感受著光因時間的流逝,在建筑內部亦有不同體驗。

二樓是帶來沉浸式體驗的酒館,高挑的屋頂,池式的空間,還有橘黃色的燈光,精致得很有范兒。

空間的多樣組合也是店內的特色,各處小細節,都透露著用心。隨意凹個造型,讓你的照片引爆你朋友圈。

行走到樓梯旁時,秩序感與自然彎曲的建筑形成對比,那是一種渾然天成的和諧畫面。


空間視野很寬闊,綠植隨著四季的更替而變化,在微風和暖陽下,給人非常舒心的體驗感。


每個時代都有屬于每個時代的精神與節奏。我們何其有幸生活在一個開放多元的時代,它包容且自由,無論是藝術、文化還是精神。一個空間的完成并不僅僅意味著好看、高顏值,還要看設計和品牌的吻合度。要用設計去創新和延續,為空間鋪敘內涵,來呈現這個時代下獨特的精神自由。
